Сегодня девелоперы ищут новые способы повышения привлекательности жилищных проектов в условиях, когда нужно тотально оптимизировать затраты.
О квартире
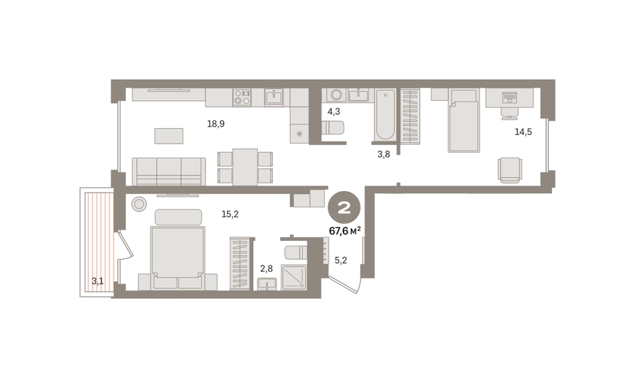
Квартира с кухней-гостиной и двумя спальнями в «Первом квартале». Особенности планировки: окна на две стороны, второй санузел, вид во двор, разнесённые спальни, предчистовая отделка, мастер-спальня, балкон. № квартиры в нашей базе: МТК01-Ж1.2.6.О застройщике
Брусника — российская девелоперская компания. Специализируется на строительстве жилых многоэтажных домов. Основана в 2004 году. Штаб-квартира находится в Екатеринбурге. Сегодня Брусника строит современное демократичное жильё в крупных городах Урала и …
Брусника — российская девелоперская компания. Специализируется на строительстве жилых многоэтажных домов. Основана в 2004 году. Штаб-квартира находится в Екатеринбурге. Сегодня Брусника строит современное демократичное жильё в крупных городах Урала и Сибири, в Москве и Московской области. Ежегодно это 7 000 новых квартир для российских семей.
