Сегодня девелоперы ищут новые способы повышения привлекательности жилищных проектов в условиях, когда нужно тотально оптимизировать затраты.
О квартире
Готовые дома и ключи в день покупкиРассрочка 0%
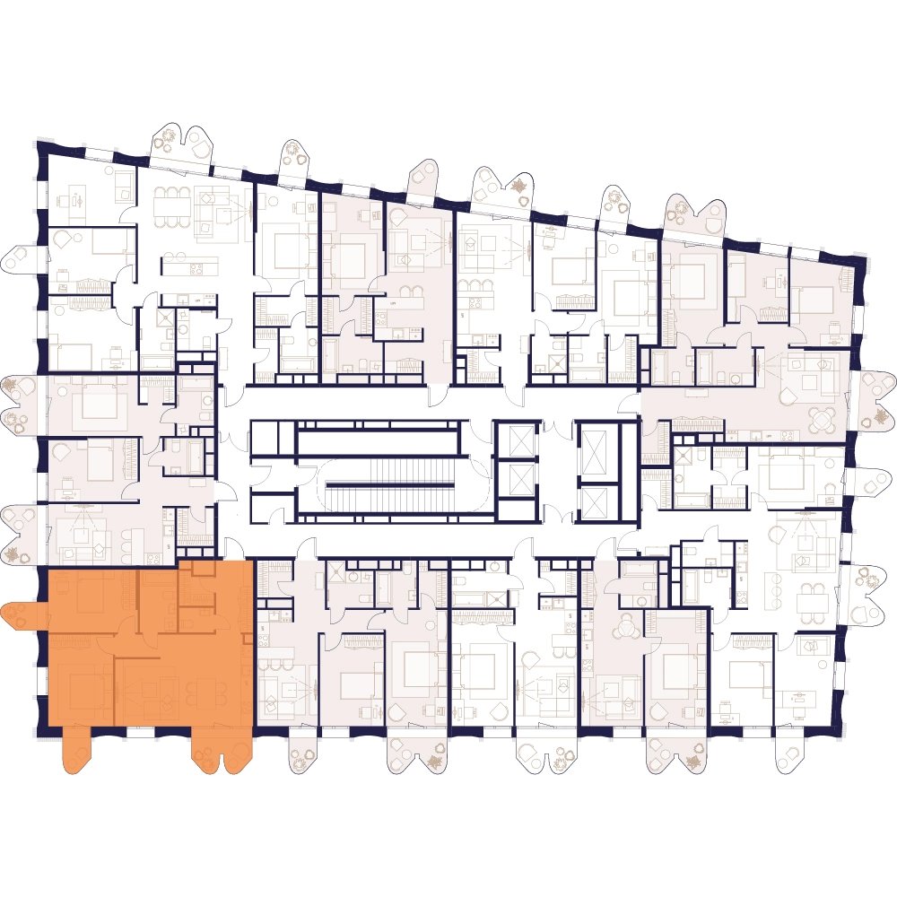
Продаётся 3-комнатная квартира площадью 78.4 м² на 18 этаже в Жилом Комплексе «Союз».
Квартал здоровой жизни премиум-класса с рекордным количеством олимпийских видов спорта:
- Ледовая арена для хоккея и фигурного катания, - Футбольные поля для тренировок, - Спортивный зал для фехтования, - Бассейн на 6 дорожек, - Центр единоборств, - 4 крытых площадки для настольного тенниса, - 7 теннисных кортов (крытых и открытых), - 4 крытых площадки для сквоша, - Легкоатлетический стадион, - Площадки для баскетбола и волейбола.
Уникальные форматы квартир с мастер-спальнями, приватными террасами, балконами, а также пентхаусы с открыточными видами на город.
Все квартиры продаются с отделкой Shell&Core и панорамным остеклением.
Расположение
Пешком:
- 2 мин. до парка «Сад Будущего»; - 6 мин. до ст. м. «Ботанический сад»; - 6 мин. до ст. МЦК «Ботанический сад»; - 6 мин. до парка «Леоновская роща»;
На автомобиле:
- 2 мин. до СВХ (МСД); - 5 мин. до Проспекта Мира; - 10 мин. до ТТК; - 15 мин. до Садового кольца; - 25 мин. до аэропорта «Шереметьево».
Благоустройство
- собственная спортивная инфраструктура 7 Га; - зона для пикников; - игровые и спортивные площадки для детей всех возрастов; - розарий, а также сосновые, каштановые и дубовые аллеи; - площадки под открытым небом для занятий спортом и йоги; - игровые комнаты для детей; - лаунж-зона для резидентов; - просторная переговорная для деловых встреч; - премиальный ресторан «Шабада» Сосо Павлиашвили с водными арт-объектами на прогулочной аллее, садом ароматных трав и сценой под открытым небом; - кафе, химчистки, аптеки и супермаркеты рядом с домом.
Окружение
- 8 парков: Сад Будущего, Леоновская роща, Хуамин, Главный ботанический сад РАН, Шереметьевская дубрава, Останкино, парк спорта «Яуза», пойма реки Яуза и музей-усадьба «Останкино»; - 3 ВУЗа: ВГИК, РГСУ, МГПУ; - 12 школ, в том числе: школа 1499 им. И.А. Докукина (топ 100), Brookes Moscow, IThub школа; - 18 детских садов, в том числе билингвальный ALERTUM KIDS; - один из крупнейших океанариумов Европы «Москвариум»; - один из крупнейших в Европе торгово-развлекательных центров «Европолис».
О застройщике
Стратегическое направление деятельности компании — строительство жилых кластеров, в которых жилая недвижимость реализуется с интересами спортивной, образовательной и культурной безопасности под управлением выдающихся деятелей российского образования, культуры и спорта.
…
Стратегическое направление деятельности компании — строительство жилых кластеров, в которых жилая недвижимость реализуется с интересами спортивной, образовательной и культурной безопасности под управлением выдающихся деятелей российского образования, культуры и спорта.
Воплощение вероятности раннего развития кластеров отвечает приоритетам государственной политики России, формированию и доступу к окружающей среде для создания условий комфортной жизни и воспитания новых успешных, успешных, всесторонне образованных детей, ожидаемых в будущем нашей страны.
