Сегодня девелоперы ищут новые способы повышения привлекательности жилищных проектов в условиях, когда нужно тотально оптимизировать затраты.
О квартире
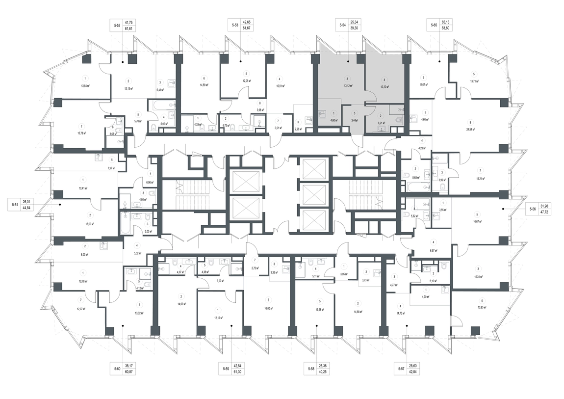
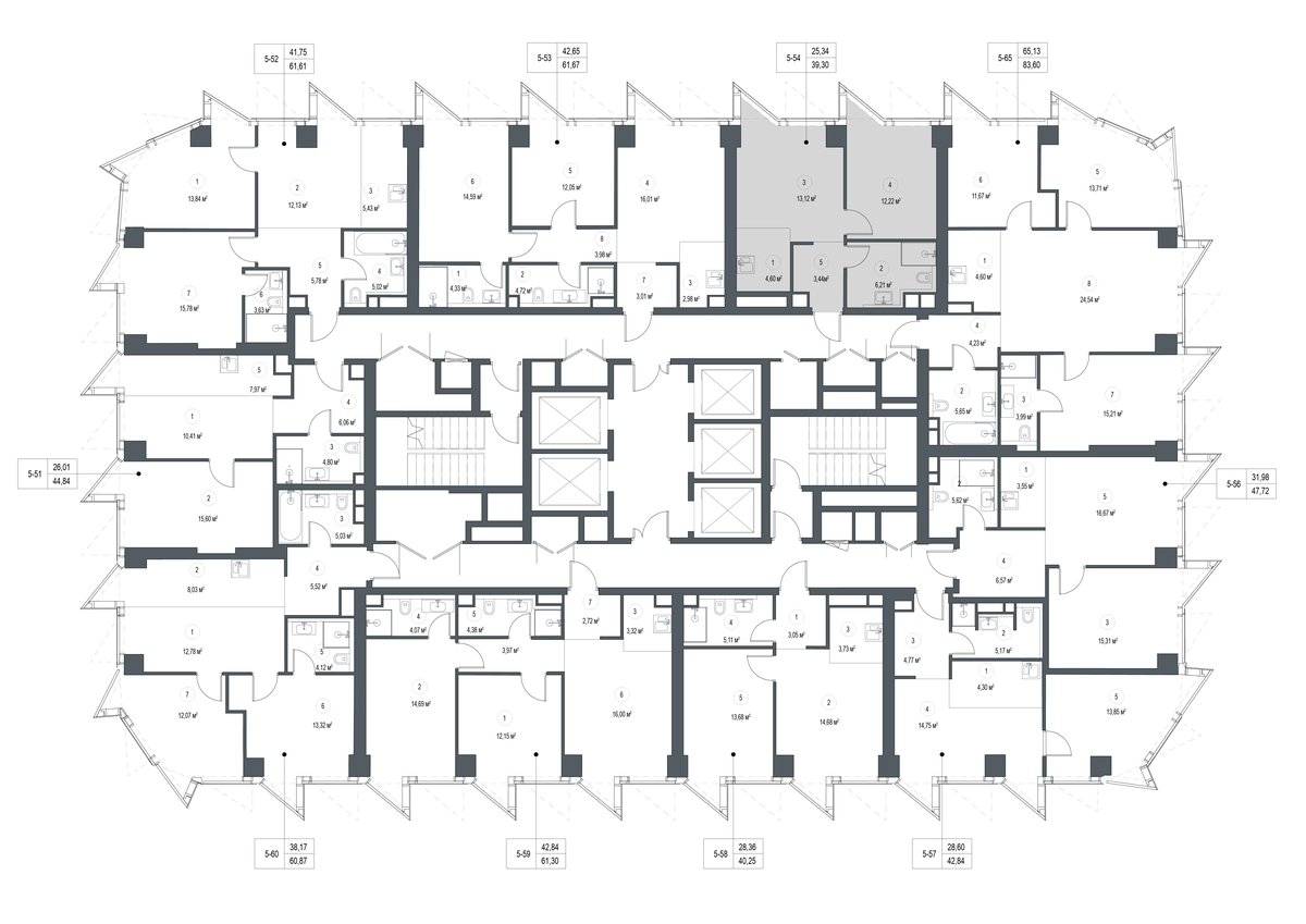
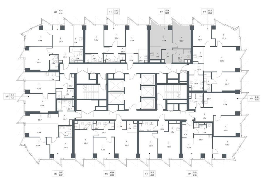
Прямая продажа от застройщика. Продаётся 1-к квартира общей площадью 39.30 кв. м с предчистовой отделкой на 7-м этаже премиального небоскреба Famous. Срок ввода в эксплуатацию - IV кв. 2024 г. Выдача ключей - II кв. 2025 г. Если к слову «будущее» подобрать архитектурный синоним, им непременно станет премиальный небоскреб Famous. Он расположен в закрытом квартале «Фили Сити» – настоящем городе в городе, окруженном зеленым ореолом из аллей и скверов, с инфраструктурой для жизни и отдыха самых взыскательных горожан. Резидентов Famous ждет особая привилегия – открывающиеся из окон бескрайние панорамы, с видами на парк Фили, Поклонную гору, Москва-реку и Москва-Сити. Эффектный ультрасовременный 57-этажный небоскреб, пластичный в нижней части, наверху трансформируется и взмывает ввысь выразительной скульптурой с обтекаемой поверхностью. Фасад украшенный стеклянными эркерами в виде прямых треугольных призм, словно олицетворяет собой идеально собранный пазл. Это безупречное решение для тех, кто не боится лидерства и высоты, не ищет простых путей, держит высокую планку во всем, не останавливается на достигнутом и живет в ритме мегаполиса. Не зря логотип Famous украшает графический элемент Триумфальной арки на Кутузовском проспекте – символ успеха и жизненных побед. Особенности дома: • Проект премиум-класса рядом с центром Москвы • Футуристическая авторская архитектура от бюро ADM • Ультрасовременные инженерные решения современных небоскрёбов • Элегантное решение орнаментальной композиции фасада от бюро ADM • Famous станет первым проектом в Москве с интерьерами лобби от международной архитектурной компании A ++ • Панорамное остекление по всему фасаду, головокружительные виды на достопримечательности Москвы, парк Фили, Москва-Сити и Поклонную гору • Европейский подход к благоустройству: площадь с фонтанами, парк-променад, детские и спортивные площадки, зоны отдыха • Продуманная концепция инфраструктуры: уютные кафе и рестораны, супермаркет, фитнес-студия, службы сервиса, детский центр развития • Эргономичные планировки от бюро Олега Клодта Транспортная доступность: • Удобный выезд на Кутузовский проспект и ТТК • В пешей доступности станции метро «Фили», «Багратионовская» и «Парк Победы» Компания MR Group предлагает своим клиентам специальные условия приобретения квартир в рамках программ ипотечного кредитования от банков-партнеров.О застройщике
Один из крупнейших девелоперов России, компания уже восемь раз становилась обладателем титула Девелопер года. Начало работы компании приходится на 2003 года, сейчас компания предоставляет полный спектр услуг: она подбирает площадки …
Один из крупнейших девелоперов России, компания уже восемь раз становилась обладателем титула Девелопер года. Начало работы компании приходится на 2003 года, сейчас компания предоставляет полный спектр услуг: она подбирает площадки для строительства, проводит анализ эффективности инвестиций, разрабатывает проект и возводит комплексы, реализует их, а также занимается их дальнейшей эксплуатацией. Компания построила 37 проектов, чья общая площадь достигает более 5 миллионов квадратных метров недвижимости. Все эти ЖК построены в Москве, Московской области и в Сочи. Входит в число 3 самых крупных застройщиков Москвы и 7 крупнейших застройщиков России. В рамках строительства компания не только возводит жилье, но и всю необходимую социальную инфраструктуру, прокладывает дороги. Проекты социальной ответственности также широко развиты внутри компании. Компания выступает спонсором фестиваля Времена года в Подмосковье. Сотрудниками компании создан клуб волонтеров, который курирует онкологическое детское отделение Боткинской больницы. Совместно с театральным музеем Бахрушина компания открыла филиал музея в Сочи.
