Сегодня девелоперы ищут новые способы повышения привлекательности жилищных проектов в условиях, когда нужно тотально оптимизировать затраты.
О квартире
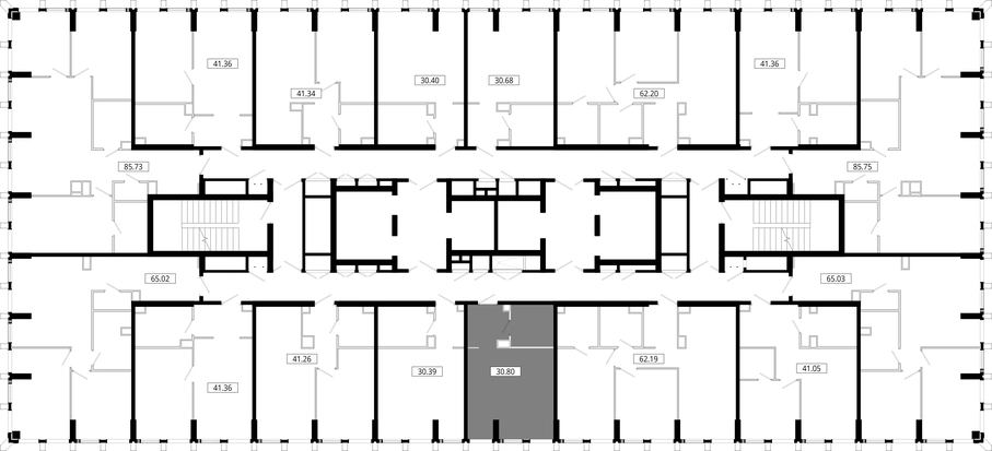
Прямая продажа от застройщика. Жилой комплекс премиум-класса Mod. Продается студия общей площадью 30.80 кв. м с предчистовой отделкой в ЖК Mod на 17-м этаже 44 этажного дома. Mod - жилой комплекс премиум-класса в историческом районе Москвы Марьина Роща. Пятый корпус станет частью единого высотного ансамбля, который поднимается над столицей и очерчивает новый горизонт города. Расположение корпуса Mod.C отличается тем, что виды на юго-запад Москвы не ограничены существующей застройкой. Почти все главные доминанты столицы — как на ладони: от сталинских высоток до небоскрёбов делового центра. Любоваться достопримечательностями будет вдвойне приятнее через панорамные окна. Закрытая территория жилого комплекса, продуманное благоустройство, эксплуатируемые кровли стилобата, образовательный центр с детским садом создают приватное пространство для тихой семейной жизни, а городская площадь с фонтанами, ресторан, супермаркет, коммерческая инфраструктура на первых этажах привносят созвучную с ритмом города динамику. Преимущества проекта: • В шаговой доступности новый деловой кластер Москвы • Выразительная авторская архитектура • Единственные в Москве фасады башен из натурального камня • Панорамное остекление и высота потолков до 4,8 м • Квартиры и апартаменты с отделкой MR Base • Многоуровневое благоустройство с зонированием на закрытой территории • Многофункциональный образовательный детский центр с детским садом • Двухуровневый подземный паркинг Транспортная доступность: • 5 минут пешком до станции метро «Марьина роща» • 3 минуты до ТТК • 15 минут до Цветного бульвара Компания MR Group предлагает своим клиентам специальные условия приобретения квартир в рамках программ ипотечного кредитования от банков-партнеров.О застройщике
Один из крупнейших девелоперов России, компания уже восемь раз становилась обладателем титула Девелопер года. Начало работы компании приходится на 2003 года, сейчас компания предоставляет полный спектр услуг: она подбирает площадки …
Один из крупнейших девелоперов России, компания уже восемь раз становилась обладателем титула Девелопер года. Начало работы компании приходится на 2003 года, сейчас компания предоставляет полный спектр услуг: она подбирает площадки для строительства, проводит анализ эффективности инвестиций, разрабатывает проект и возводит комплексы, реализует их, а также занимается их дальнейшей эксплуатацией. Компания построила 37 проектов, чья общая площадь достигает более 5 миллионов квадратных метров недвижимости. Все эти ЖК построены в Москве, Московской области и в Сочи. Входит в число 3 самых крупных застройщиков Москвы и 7 крупнейших застройщиков России. В рамках строительства компания не только возводит жилье, но и всю необходимую социальную инфраструктуру, прокладывает дороги. Проекты социальной ответственности также широко развиты внутри компании. Компания выступает спонсором фестиваля Времена года в Подмосковье. Сотрудниками компании создан клуб волонтеров, который курирует онкологическое детское отделение Боткинской больницы. Совместно с театральным музеем Бахрушина компания открыла филиал музея в Сочи.
