Сегодня девелоперы ищут новые способы повышения привлекательности жилищных проектов в условиях, когда нужно тотально оптимизировать затраты.
О квартире
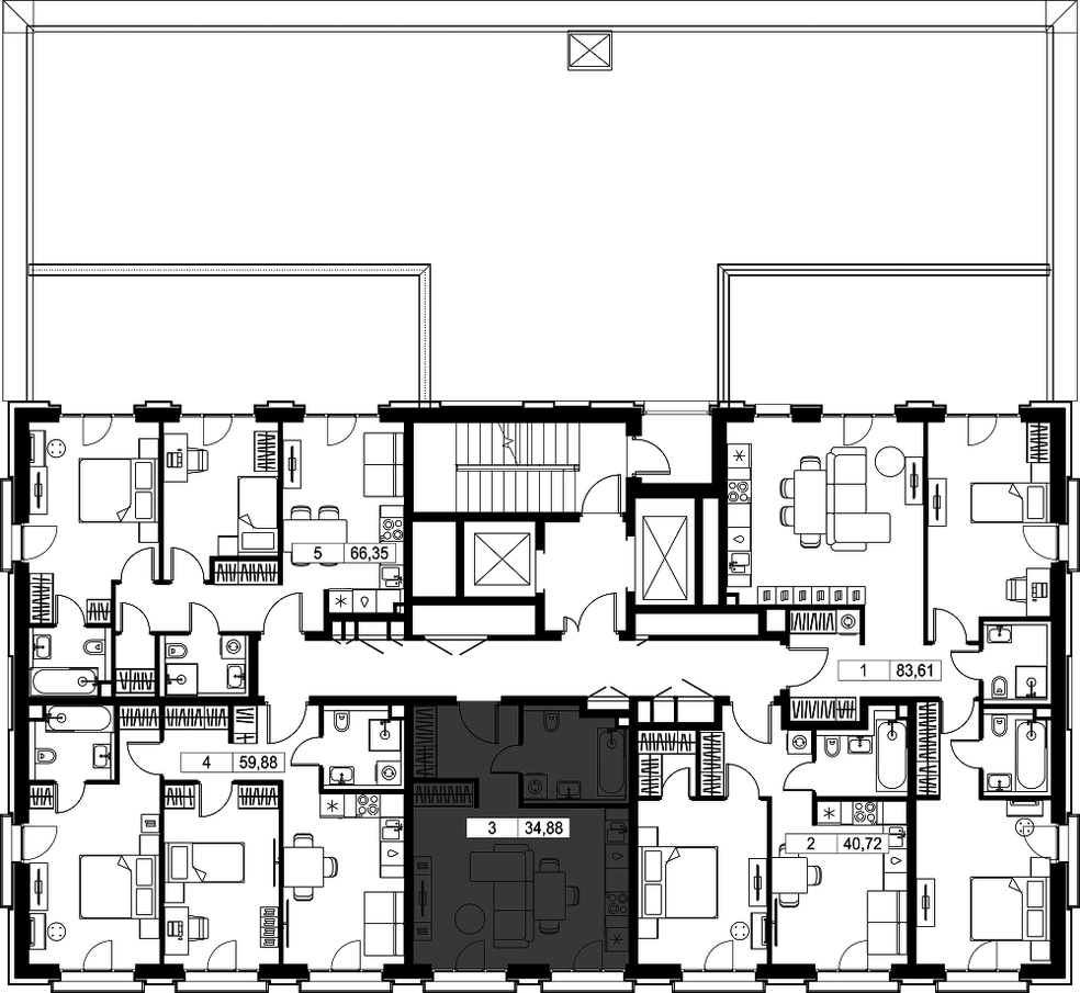
Прямая продажа от застройщика. Продаётся студия общей площадью 34.88 кв. м без отделки в ЖК «Селигер Сити» на 2-м этаже корпуса Ломоносов. Корпуса четвертой очереди ЖК "Селигер сити" названы в честь трех великих представителей науки и архитектуры, новаторское видение которых слишком смелое для своего времени нашло воплощение в уникальных домах жилого комплекса. Клубный 15-этажный корпус Ломоносов расположен во дворе 4 очереди. Фасад корпуса выполнен из темного кирпича с контрастным первым этажом. Квартиры верхних этажей имеют панорамные окна и балконы с декоративным ограждением. Часть квартир на втором этаже имеют открытые террасы. На первом этаже дизайнерские интерьеры лобби выполненные по проекту бюро Вlank Architects. На жилых этажах не более 5 квартир. Преимущества проекта: • 2 минуты пешком от метро «Селигерская» • Архитектурное решение от голландского бюро MLA + • Одна из самых больших придомовых территорий в Москве • Огороженная охраняемая территория, круглосуточное видеонаблюдение • Европейский подход к благоустройству от бюро WOWHaus: появится парадный бульвар, аллея с фонтаном и арт-объектом, что дополнит уже сформированное благоустройство: детские площадки для разных возрастов, площадки для воркаута, дорожки для бега и пеших прогулок, места для отдыха • Искусственный пруд на территории комплекса с благоустроенной набережной и мостом • Продуманная концепция инфраструктуры: уютные кафе и рестораны, супермаркет, магазин фермерских продуктов, бытовые службы, салон красоты, детские сады • Ультрасовременные инженерные решения • Подземный паркинг с зарядными станциями для электромобилей, постами подкачки шин и келлерами • Лобби по индивидуальному дизайн проекту от европейского бюро Вlank Architects: лаунж-зоны, ресепшен, колясочная, помещение для мытья лап животным после прогулки • Надежный девелопер с опытом премиальных проектов MR Group Расположение комплекса: • 2 минуты от станции метро «Селигерская» • 7 минут на машине до станции метро «Окружная» • Предусмотрен удобный выезд в сторону ТТК (всего 9 км или 15 минут без пробок) • МКАД в 10 минутах на машине Компания MR Group предлагает своим клиентам специальные условия приобретения квартир в рамках программ ипотечного кредитования от банков-партнеров.О застройщике
Один из крупнейших девелоперов России, компания уже восемь раз становилась обладателем титула Девелопер года. Начало работы компании приходится на 2003 года, сейчас компания предоставляет полный спектр услуг: она подбирает площадки …
Один из крупнейших девелоперов России, компания уже восемь раз становилась обладателем титула Девелопер года. Начало работы компании приходится на 2003 года, сейчас компания предоставляет полный спектр услуг: она подбирает площадки для строительства, проводит анализ эффективности инвестиций, разрабатывает проект и возводит комплексы, реализует их, а также занимается их дальнейшей эксплуатацией. Компания построила 37 проектов, чья общая площадь достигает более 5 миллионов квадратных метров недвижимости. Все эти ЖК построены в Москве, Московской области и в Сочи. Входит в число 3 самых крупных застройщиков Москвы и 7 крупнейших застройщиков России. В рамках строительства компания не только возводит жилье, но и всю необходимую социальную инфраструктуру, прокладывает дороги. Проекты социальной ответственности также широко развиты внутри компании. Компания выступает спонсором фестиваля Времена года в Подмосковье. Сотрудниками компании создан клуб волонтеров, который курирует онкологическое детское отделение Боткинской больницы. Совместно с театральным музеем Бахрушина компания открыла филиал музея в Сочи.
