Сегодня девелоперы ищут новые способы повышения привлекательности жилищных проектов в условиях, когда нужно тотально оптимизировать затраты.
О квартире
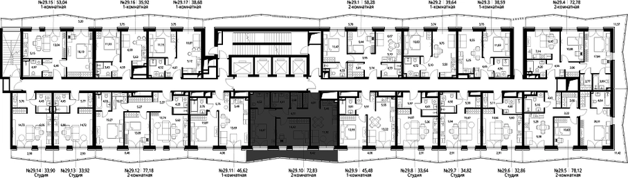
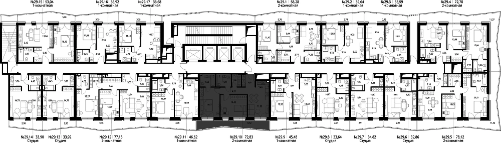
Прямая продажа от застройщика. Продаётся 2-к квартира общей площадью 73.74 кв. м с предчистовой отделкой в ЖК «Селигер Сити» на 29-м этаже башни Лисицкого. Корпуса четвертой очереди ЖК «Селигер сити» названы в честь трех великих представителей науки и архитектуры, новаторское видение которых — слишком смелое для своего времени — нашло воплощение в уникальных домах жилого комплекса. Вдохновленные авангардными идеями знаменитого советского архитектора Эля Лисицкого, архитекторы создали яркий центр притяжения всего района, задающий новый стандарт жизни в современном мегаполисе — две высокие «Башни Лисицкого» с современной интерпретацией горизонтального небоскреба. Преимущества проекта: Первые три очереди сданы. • 2 минуты пешком от метро «Селигерская» • Архитектурное решение от голландского бюро MLA + • 8 корпусов разной этажности от 8 до 45 этажей • Одна из самых больших придомовых территорий в Москве — размером с 4 футбольных поля • Огороженная охраняемая территория, круглосуточное видеонаблюдение • Европейский подход к благоустройству от бюро WOWHaus: детские площадки для разных возрастов, спортивные площадки, площадки воркаута, дорожки для бега и пеших прогулок, скейтпарк, хоккейная площадка, площадка для выгула собак • Искусственный пруд на территории комплекса с благоустроенной набережной и мостом • Продуманная концепция инфраструктуры: уютные кафе и рестораны, супермаркет, магазин фермерских продуктов, бытовые службы, салон красоты, детские сады • Панорамные окна высотой до 2,5 м, в корпусах 3 очереди витражное остекление высотой до 4,2 м • Широкий выбор квартир — от компактных студий до просторных квартир с тремя спальнями и пентхаусов • Четыре вида дизайнерской отделки квартир от бюро Вlank Architects • Возможность купить квартиру с предчистовой отделкой white box • «Умный дом» на платформе Ujin. Система безопасности, вход на территорию и в подъезд по биометрии или BLE-метке, въезд в паркинг по считывателю номера, контроль климата. Все для комфортной жизни! • Лобби по индивидуальному дизайн проекту от европейского бюро Вlank Architects: лаунж-зоны, ресепшен, колясочная, помещение для мытья лап животным после прогулки • Подземный паркинг на 2189 машино-мест по индивидуальному дизайну, с зарядными устройствами для электромобилей, постами для подкачки шин и келлерами • Надежный девелопер с опытом премиальных проектов MR Group Расположение комплекса: • 2 минуты от станции метро «Селигерская» • 7 минут на машине до станции метро «Окружная» • Предусмотрен удобный выезд в сторону ТТК (всего 9 км или 15 минут без пробок) • МКАД в 10 минутах на машине Компания MR Group предлагает своим клиентам специальные условия приобретения квартир в рамках программ ипотечного кредитования от банков-партнеров.О застройщике
Один из крупнейших девелоперов России, компания уже восемь раз становилась обладателем титула Девелопер года. Начало работы компании приходится на 2003 года, сейчас компания предоставляет полный спектр услуг: она подбирает площадки …
Один из крупнейших девелоперов России, компания уже восемь раз становилась обладателем титула Девелопер года. Начало работы компании приходится на 2003 года, сейчас компания предоставляет полный спектр услуг: она подбирает площадки для строительства, проводит анализ эффективности инвестиций, разрабатывает проект и возводит комплексы, реализует их, а также занимается их дальнейшей эксплуатацией. Компания построила 37 проектов, чья общая площадь достигает более 5 миллионов квадратных метров недвижимости. Все эти ЖК построены в Москве, Московской области и в Сочи. Входит в число 3 самых крупных застройщиков Москвы и 7 крупнейших застройщиков России. В рамках строительства компания не только возводит жилье, но и всю необходимую социальную инфраструктуру, прокладывает дороги. Проекты социальной ответственности также широко развиты внутри компании. Компания выступает спонсором фестиваля Времена года в Подмосковье. Сотрудниками компании создан клуб волонтеров, который курирует онкологическое детское отделение Боткинской больницы. Совместно с театральным музеем Бахрушина компания открыла филиал музея в Сочи.
