Сегодня девелоперы ищут новые способы повышения привлекательности жилищных проектов в условиях, когда нужно тотально оптимизировать затраты.
О квартире
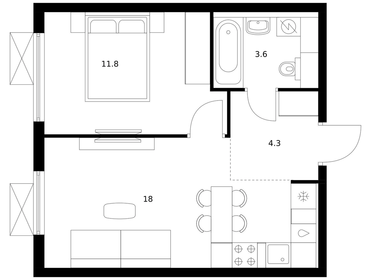
Продаётся 1-комн.квартира площадью 37.70 кв.м на 20 этаже 24 этажного дома (Корпус 5, секция 1) проекта ПИК Яуза парк. Светлый просторный подъезд на уровне земли, функциональная планировка, большие окна, с отделкой. Жилой квартал «Яуза парк» возводится в Мытищах, в 5 минутах ходьбы от одноимённой ж/д станции. Проект включает 20 домов разной этажности с благоустроенными дворами-парками. Индивидуальный дизайн фасадов разработали архитектурные бюро KATARSIS и RHIZOME. Вблизи жилого квартала появятся шумопоглощающие экраны, позволяющие забыть о том, что неподалёку находятся железнодорожные пути. На первых этажах домов откроются магазины, кафе, салоны красоты и другие полезные сервисы. Рядом есть школы и детские сады, магазины и ТРЦ «Красный кит». На территории проекта появится благоустроенная набережная реки Яузы и пешеходный бульвар для прогулок всей семьёй. Водонапорную башню XIX века, расположенную на территории «Яуза парка», мы реставрируем и создадим вокруг неё общественное пространство для отдыха жителей квартала. Для прогулок отлично подойдёт Мытищинский центральный парк культуры и отдыха, расположенный в 10 минутах ходьбы, и Лосиный остров — в 24 минутах. Дорога на автомобиле до Ярославского шоссе займёт не более 3 минут, до МКАД — 10 минут. Артикул - 940568О застройщике
ПИК — технологическая компания и крупнейший девелопер в России.
В основе нашей работы — стремление сделать жизнь людей лучше. Собственное производство, масштаб компании и разнообразный опыт специалистов нашей команды …
ПИК — технологическая компания и крупнейший девелопер в России.
В основе нашей работы — стремление сделать жизнь людей лучше. Собственное производство, масштаб компании и разнообразный опыт специалистов нашей команды позволяет реализовать этот подход в каждом проекте.
Мы верим, что комфортная и безопасная среда, современные дома и полезные сервисы являются фундаментом счастливой жизни.
Проектирование и строительство жилых районов подчинено ПИК-стандарту. Это правила, по которым мы строим наши проекты: уютные дворы-парки, современные школы и детские сады, квартиры с функциональными планировками.
У нас строгие стандарты и огромные масштабы строительства, но мы не забываем, что у каждого проекта должна быть своя изюминка.
Чтобы дети как можно больше времени проводили на улице, мы придумали особый формат игровых площадок — PlayHub. Каждая из них с уникальным ландшафтом и игровыми плотинами на искусственном ручье. А благодаря абстрактным формам игрового оборудования дети могут придумать бесконечное количество игр.
Ещё одна особенность наших проектов — сухие фонтаны. У такого типа фонтанов нет традиционной чаши, а струи воды бьют прямо из тротуара, по которому можно гулять. В Матвеевском кластере в Москве, который объединил четыре жилых квартала ПИК, уже открыли фонтан с ночной подсветкой.
В «Серию плюс» входят жилые кварталы с повышенным уровнем комфорта и уникальной архитектурой. У квартир умные планировки: можно выбрать квартиру с мастер-спальней, где есть отдельная ванная комната, с просторной кухней-гостиной, с двумя санузлами, с гардеробной или постирочной. В светлых уютных лобби с дизайнерской отделкой предусмотрены колясочная и гостевой санузел.
ПИК — это компания про новые решения и технологии. Мы любим свежие идеи и готовы меняться во имя лучшего результата. Наша цель — доступное и качественное жильё для как можно большего количества людей.
